Beim Start von Sojus MS-28 auf Sojus-2-1А wurde die zur Startvorbereitung benötigte, beim Start aber entfernte und gesicherte Arbeitsplattform durch den Feuersturm der abfliegenden Rakete von ihrem Abstellort losgerissen und kopfüber in den rund 20m tieferen Abgas-Kanal geschleudert und zu Schrott zertrümmert.
Ein Portalbeitrag vom Raumfahrer.net Autor HausD.
Quelle: Besuch vor Ort, Barmin I. W, ESA, Roskosmos, Oborona; 3. Dezember 2025
Bau der ersten Startanlage für die R-7 Rakete des Kosmodroms Baikonur
Im Museum des Kosmodroms Baikonur hängt unter Glas eine Zeichnung, die für den Bau der ersten Startanlage für die R-7 Rakete auf dem Kosmodrom gefertigt wurde.
Auf der Zeichnung wird dargestellt und beschrieben, wie das Betonieren der obersten Schicht der Startanlage für die R-7 Rakete im Rohbau erfolgen muss.
Man sieht, wie die LKWs frischen Beton heranfahren und in einer bestimmten Reihenfolge abkippen müssen, daneben noch die grobe Form der ringförmigen Vertiefung, in der die Rakete, 4 Aussenblocks und ein Zentralblock, aufgestellt werden muss. Das ist der spätere GAGARINS START auf dem Platz 1 des Kosmodrom-Geländes.
Wer sich über die Bezeichnung Platz Nr. nn wundert, der sei an das deutsche System der Land-Gerichtsbarkeit erinnert, dort ist das die Grundstücks-Nummer einer Liegenschaft, wie sie im Grundbuch eingetragen ist.
Die ersten Starts von dort erfolgten noch mit der einfachen Trägerrakete, 4 Aussenblocks und ein Zentralblock, die als erste Nutzlast den SPUTNIK 1 in einen Erdorbit brachte.
Doch mit der Zeit standen größere Lasten auf dem Programm.
Der Start eines Menschen und natürlich auch die sichere Landung, dazu Schutzanzüge und Ausrüstung für den Notfall, und nicht zuletzt der Wunsch, mehrere Raumschiffe zu starten und im All zu einer kleinen Station zu verbinden.Für diesen Zweck wurde mit den Erfahrungen der ersten Startanlage mit dem Bau einer zweiten, nordöstlich von der ersten, begonnen. Sie befindet sich auf dem Platz 31 und ist die Starteinrichtung (ru. Abk. PU) Nr.6 des Kosmodroms Baikonur.
Über den Bau der Starteinrichtung Nr.6 gibt es ein Buch, in dem zum ersten Mal detailliert die Struktur der Starteinrichtung beschrieben wurde, und sie gilt als Vorbild für die weiteren Startanlagen für die späteren Sojus-Raketen
(Buch von Бармин И.В./Barmin I. W. (ред./Herausg.) über “ Технологические объекты наземной инфраструктуры ракетно-космической техники (инженерное пособие). Книга 1″) Buchquelle: Barmin I. W. (Herausg.)
Der Bau der Starteinrichtung
Die Startanlage mit einer Höhe von 30 Metern ist von der ebenen Erde aus in den Abgaskanal hineingebaut.
Die aufgestellte Rakete ragt rd. 7 m von oben in das Bauwerk hinein und dort müssen die Startvorbereitungsarbeiten erfolgen.
Dazu gibt es eine Arbeitsplattform, die rd. 20 m breit ist und auf Schienen unter die Rakete gerollt wird.
Im folgenden Bild sieht man rechts und links jeweils eine Galerie mit starken Brüstungswänden.
Auf diesen Brüstungswänden liegen die Schienen auf denen die Arbeitsplattform nach vorn in die Arbeitsstellung und nach hinten in die gesicherte Ruhestellung gefahren werden kann.

Bild: ESA

Bild: ESA
Diese Bilder stammen vom Bau der Startanlage für die weiterentwickelte SOJUS – 2 a und b.
Zum Aufbau der Arbeitsplattform

Bild: ESA
Auf der Kabinenplattform befinden sich acht ab- und auffahrbare kleinere Plattformen, die über Hydraulikstempel bewegt werden können.
Das zugehörige Hydrauliksystem ist auf der Kabinenplattform montiert und besteht aus einer Pumpeneinheit, einem Verteiler und den zugehörigen Versorgungsleitungen.
Über den Verteiler werden die Hydraulikzylinder, die Regelung der Hub- und Senkgeschwindigkeit sowie das Ein- und Auskuppeln der Anschläge über Steuerventile gesteuert, die sich dem Bedienfeld befinden.
Die elektrische Ausrüstung zur Steuerung der Kabine und des Betriebs der Signal- und Beleuchtungssysteme ist auf der Plattform, den Säulen, den Serviceplattformen und den Strukturelementen des Startsystems montiert. Es gibt einen Elektromotor für den Fahrmechanismus, vier Elektromotoren für den Kreisdrehmechanismus, einen Elektromotor für die Pumpeneinheit, ein Bedienfeld und ein Bedienfeld mit einer Reihe von elektrischen Geräten, Anzeigen und Bedienknöpfen.
Während des Baus auf Wostotschny sah der senkrechte Schutzschirm etwa so aus:

Foto : RosKos-Video „Kosmonawtika
In der aktuelle Version der Serviceplattform ( 8U0216M M für modifiziert) wird das Hydrauliksystem über elektromagnetische Ventile gesteuert, die von den entsprechenden Endschaltern angesteuert werden. Der Antrieb erfolgt nicht mehr über eine Kette, sondern über vier Elektromotoren.
Es gibt damit auf der Serviceplattform drei Arbeitsebenen: die Plattform selbst und darüber noch zwei Ebenen, die die Erreichbarkeit bei der Startvorbereitung der Rakete gewährleisten.

Gelb umrandet – Die Arbeitsplattform von unten gesehen
Cyan umrandet – Die Stützstreben von der Arbeitsplattform zum Schirmfachwerk
Foto : Roskosmos-Liszewa
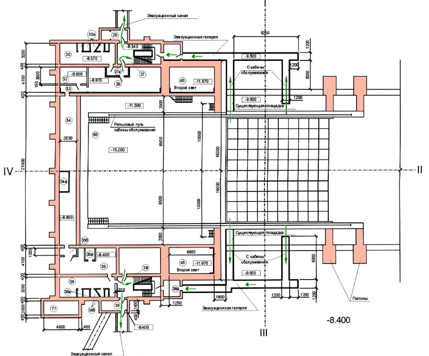
Räume auf und unter der Ebene -8,400 unter der Null-Ebene

Grafik/Quelle: Buch Barmin I. W. (Herausg.)
Die Serviceplattform ist in diesem Bereich verfahrbar, links steht sie in der Ruhestellung und beim Start, rechts über dem gewürfelten, schrägen Teil zum Abgaskanal hin, unter der Rakete bei der Startvorbereitung.
Die Schienen, auf denen sie steht oder verfahren wird sind im Abstand von der Mitte aus, jeweils 8.50m entfernt.
Am jeweiligen Standort kann die Serviceplattform arretiert werden, dazu gibt es neben den Schienenenden ein kräftiges Ösenpaar, indem es mit jeweils einem massiven Bolzen gesichert werden muss.
Auf der Startplattform darf ab der 1/2 Stunden-Bereitschaft kein Personal mehr sein, das bedeutet, dass die Serviceplattform in ihre Grundstellung gebracht und in dem (in der Zeichnung) linken Raum sicher abgestellt wurde.
Das Schutzschild deckt dann die eingefahrene Arbeitsbühne hauptsächlich beim Start ab.
Welche Kräfte wirken dort

Foto: oborona.gov
Offenbar hat die startende Rakete einen wesentlich kräftigeren Abgasstrahl entwickelt, oder war einwenig zu schnell auf vollem Schub und der Abgasstrahl hat zu stark an dem Schutzschild gezogen.
Das hat die Sicherung, falls sie angelgt war, nicht gehalten …
Als dann der Abgasstrahl hinter den Schutzschild fahren konnte, hat er das gesamte Teil kopfüber in den Abgaskanal geschmettert.
Von dem was da lag, wird nichts mehr brauchbar sein, was wiederum bedeutet, dass die Service-Plattform komplett neu angefertigt werden muss.
Das Bernoulli-Prinzip wurde hier schon einige Male diskutiert und aus dem Physik-Unterricht ist vlt. noch als Versuch bekannt:
Man bläst durch zwei nebeneinander gehaltene Blätter Papier und, nicht wie erwartet gehen die Blätter auseinander, nein sie kleben förmlich zusammen.
Beim Erreichen des maximalen Schubs beim Start hat der Gasstrom aus den Düsen die maximale Abgasgeschwindigkeit und erzeugt auf dem Stand dementsprechend den minimalen Druck. So wurde die Kabine mit dem großen Schutzschild als Angriffsfläche einfach aus der Nische herausgesaugt .wo sie zwar geparkt war. Aber offenbar ohne die nötige und vollständige Sicherung, ev. sogar eine Seite vergessen zu sichern , was die rd. 90° verdrehte Lage im Abgaskanal erklären könnte.
Noch einige Zahlen zu der akustischen, also über die Luft übertragene Schallleistung: Die liegt in 10 m Abstand vom Entstehungsort bei einem Schallleistungspegel Lak = 180 dB (bis 190 dB) und das entspricht einer akustischen, also mechanischen Leistung Pak von 1 MW (bis 10 MW).
Diskutieren Sie mit im Raumcon-Forum:

